Die Lösung für Sie
Viele Anforderungen können wir mittels angepassten Standardprodukten räumlich und technisch erreichen. Andere erfordern ein ganz individuelles Eingehen und neue Lösungsansätze. Dabei können wir perfekt auf Ihren Bedarf hin spezifizierte Anlagen konstruieren. Unser sprichwörtlicher Innovationsgeist, die fundierten Kenntnisse und die langjährige, vielseitige Erfahrung bringen wir dafür ein. So finden wir in jedem Fall die Lösung, die Ihrem Bedürfnis perfekt gerecht wird und Ihnen den grössten Nutzen bringt.
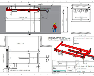
Beispiel
Ein teleskopierbarer Deckenkran kann Ausbuchtungen im Gebäude bedienen und nicht nur den Bereich unter der Kranbahn. Und eine Umfahrungssteuerung stellt sicher, dass der Kran nicht mit Hindernissen wie Produktionsmaschinen oder anderen Gegenständen kollidiert.




